- 京葉リネット トップページ
- 土地をエリアから探す
- 四街道市
- 内黒田
- リネットタウン四街道エーセンス区画
リネットタウン四街道エーセンス区画
情報更新日:2026/05/19 次回更新予定日:2026/06/02 取引条件有効期限:2026/06/02
所在地千葉県四街道市内黒田[周辺地図]
交 通総武本線「四街道」駅バス7分 停歩6分






リネットタウン四街道のフロント部に構えるA s e n s e 全7邸のゲートタウンが誕生!
■四街道ICから車で5分
■全38区画の大型分譲地内
■建築条件付宅地分譲
当分譲地は、エーセンス建築設計社による「建築条件付土地」となっており、指定された施工会社によって建物を建てることを条件としております。経験豊富な専門スタッフがご要望を伺いながら満足のいくプランをご提案させて頂きます。
すべての画像
-全邸プライベートテラスのある暮らし- 趣きのあるファサードが連なる情緒豊かな街並みが誕生します。
Botanical&Terraceをコンセプトに、中と外をつなぐ家は、外からは視界を遮り、その内では伸びやかな空間が外テラスまでつながります。
私たちが叶えたい暮らしは、家族に豊かな時間をもたらす住まい。その豊かさは、中と外との間にあると考えています。リビングの延長のように感じるデッキ空間、開放的だけど程よく目線がつながる設計。
外からの視線を遮るウッドテラス空間に面した大開口の窓、リビングから伸びるウッドテラスと深い軒。 そこには、外とも中ともつかない開放的な空間が生み出され、かけがえのない家族との穏やかな時間が流れます。 叶えたい暮らしは、家族に豊かな時間をもたらす「住まい」です。
【エーセンス建物同仕様】快適で上質な暮らしを叶える標準プラン。全邸宅ボタニカルビュー。 内庭をつくりボタニカルな空間に心癒される暮らし。
【街並み完成パース】
【1号地現地写真】
【1号地】家族のコミュニケーションが広がる家 2(3)LDK+ウッドデッキ+パントリー+書斎+WIC(2箇所) 土地価格1,530万円、土地面積165.05m2、建物価格2,730万円、建物面積105.99m2
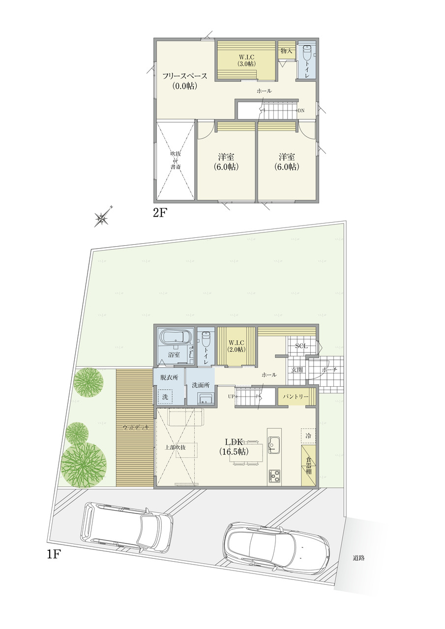
【2号地現地写真】
【2号地】明るい16.5帖LDK&広々テラスが家族を笑顔にしてくれる家 2(3)LDK+ウッドデッキ+パントリー+書斎+WIC(2箇所) 土地価格1,480万円、土地面積165.29m2、建物価格2,680万円、建物面積97.78m2
【3号地現地写真】
【3号地】 2(3)LDK+ウッドデッキ+パントリー+書斎+WIC(2箇所) 土地価格1,650万円、土地面積171.74m2、建物価格2,780万円、建物面積104.75m2
【4号地現地写真】
【4号地】陽光あふれる広々16.5帖リビングに家族が集う家 2(3)LDK+ウッドデッキ+パントリー+吹抜+WIC(2箇所) 土地価格1,600万円、土地面積165.05m2、建物価格2,680万円、建物面積101.02m2
【5号地現地写真】
【5号地】広々18.5帖LDKの先につながる大開口ウッドデッキのある伸びやかな家 2(3)LDK+ウッドデッキ+パントリー+吹抜+WIC(2箇所) 土地価格1,650万円、土地面積165.04m2、建物価格2,730万円、建物面積98.95m2
担当スタッフより

- 小池 健一
- 四街道ICから車で5分!全38区画の大型分譲地が誕生!
敷地面積165m2(約50坪)以上あるため、駐車スペースに加えてお庭のスペースも広々取れます。全38区画の大型分譲地が誕生。ゆとりある街並みと自然に囲まれた静かな住環境が魅力です。是非現地にて陽当りと開放感を体感してください。
・土地面積約50坪~
・駐車スペース2台可
物件詳細情報
物件No.20000405810
| 所在地 | 千葉県四街道市内黒田 | ||
|---|---|---|---|
| 交通 | 総武本線「四街道」駅バス7分 バス停「敬愛高校グランド」停歩6分 | ||
| 土地面積 | 165.04m² ~ 171.74m² | ||
| 販売区画数 | 5区画 | 総区画数 | 全7区画 |
| 用途地域 | その他 | 建ぺい率 | 50% |
| 容積率 | 100% | 都市計画 | 市街化調整区域 |
| 建築条件 | 建築条件付 | 地目 | 宅地 |
| 最適用途 | 住宅用地 | 現況 | 造成済 |
| 権利種類 | 所有権 | 接道 | 西側7.2M公道に接道 南側6.5M公道に接道 東側6M公道に接道 |
| 小学校区 | 八木原小学校(2100m) | 中学校区 | 千代田中学校(2250m) |
| 取引態様 | 代理 | ||
| 販売スケジュール | 先着申込 | ||
| 設備 | 公営水道、個別浄化槽、都市ガス | ||
| その他制限事項 | 景観法、航空法 | ||
| 備考・制限等 | 開発許可:千葉県印土指令第82号の20(令和5年9月15日付) 開発検査済:千葉県印土指令検第37号の7 (令和7年8月26日付) |
||
こだわり項目
- ※価格は物件の代金総額を表示しており、消費税が課税される場合は税込み価格です。(1,000円未満は切り上げ。)
税率は引き渡し時期により異なりますので、各物件の詳細につきましてはお問い合わせください。 - ※敷地権利が借地権のものは価格に権利金を含みます。
- ※制作中に内容が変更される場合もありますので、あらかじめご了承ください。
- ※購入の前には物件内容や契約条件についてご自身で十分な確認をしていただくようにお願いいたします。
- ※完成予想図はいずれも外構、植栽、外観等実際のものとは多少異なることがあります。
- ※CG合成の画像の場合、実際とは多少異なる場合があります。
周辺地図
周辺施設一覧
- ショッピングセンター
- スーパー
- コンビニ
- ドラッグストア
- ホームセンター
- 飲食店
- その他店舗
- 商店街
- 大学
- 専門学校
- 高校・高専
- 中学校
- 小学校
- 保育園
- 幼稚園
- 公民館・児童館
- 病院
- 郵便局
- 役所
- 図書館
- 金融機関
- 警察・消防
- 趣味・娯楽施設
- 公園・運動施設
- 周辺の街並み
- 駅
- その他
お問い合せ先
- 京葉リネット株式会社
- お電話でのお問い合わせは
043-441-3400「ホームページを見た」とお問い合わせください - 千葉県千葉市花見川区幕張町4-624-2
- 営業時間:9:00~18:00
- 定休日:毎週水曜日
- 免許番号:千葉県知事免許(4)第15317号 建設業免許(般-4)第55787号
- 京葉リネット トップページ
- 土地をエリアから探す
- 四街道市
- 内黒田
- リネットタウン四街道エーセンス区画




